53 commentaires

Le Grenier

Vérifier la disponibilité

chambres

Adultes

Le Grenier Le Grenier Le Grenier Le Grenier Le Grenier Le Grenier

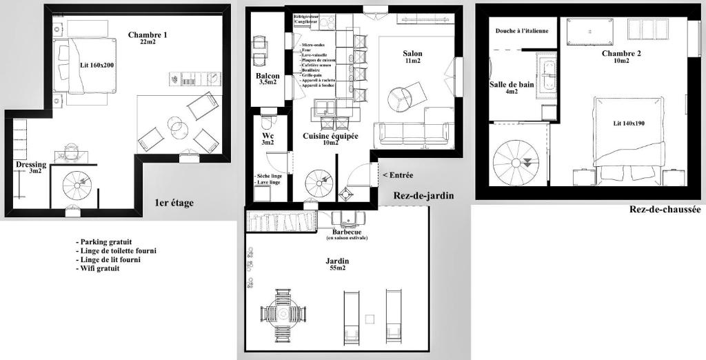
Situé à Saint-Jean-de-Sixt, en Rhône-Alpes, Le Grenier 1821 - Mini chalet - Centre village - AravisTour dispose d'un balcon. Annemasse se trouve à 33 km. Vous bénéficierez gratuitement d'un parking privé sur place et d'une connexion Wi-Fi.

Cet appartement comprend 2 chambres, une télévision à écran plat, un coin salon et une salle de bains pourvue d'une douche. Sa cuisine est équipée d'un lave-vaisselle et d'un réfrigérateur. Les serviettes et le linge de lit sont fournis.

Vous séjournerez à 29 km d'Annecy et à 47 km de Genève. L'aéroport de Chambéry-Savoie, le plus proche, est à 75 km. - Mini chalet.

Informations sur l'hôte

Informations sur l'hébergement

Ancien grenier rénové en mini chalet cosy sur 3 étage. Pièce principale (entrée - rez de jardin) environ 28m2 : coin salon - cuisine équipée - toilettes Etage inférieur (rez de chaussée) : Salle de bain - chambre de 12m2 avec 1 lit double de 140x190 (2 personnes) 1er étage : Grande chambre de 28m2 avec 1 lit double de 160x200 + Canapé convertible en 2 lits simples (à tirroir) - coin dressing Veuillez noter que l'escalier étroit (50cm), n'est pas adapté aux personnes âgées ou à mobilité réduite.

Informations sur le quartier

Idéalement situé proche du centre de Saint-Jean-de-Sixt (à 200 mètres des commerces), et proche des stations de ski : entre les stations de la Clusaz et du Grand-Bornand (à 3km de chaque station). En saison d'hiver, accès aux stations de ski grâce aux skibus gratuits toutes les 30 minutes.

Langues parlées

Français

Vérifier la disponibilité

chambres

Adultes


Propriétés similaires

L' Aloe Bleue - Bungalow dans Camping 4 etoiles

8  (1 recenzii)

Saint-Jean-de-Monts

Doté d'une piscine extérieure, l'établissement L Aloe Bleu - Camping du Bois Masson est situé à Saint-Jean-de-Monts, à 49 km de la gare de Pornic, à 5
L ayrolle

8 Personnel  (5 recenzii)

Saint-Jean-du-Gard

Offrant une vue sur la montagne, L ayrolle propose un hébergement avec un jardin, un salon commun et une terrasse, à environ 44 km des Grottes des Dem
KASA VOYTIER Superbe studio avec parking & Wifi - Balcon & Ascenseur

7.9 Personnel  (8 recenzii)

Saint Etienne

Situé à Saint-Étienne, à 4,9 km du Zénith et à 5,7 km du stade Geoffroy-Guichard, le KASA VOYTIER Parking privé & Wifi - Balcon & Ascenseur pr
Julieta

8.1 Personnel  (8 recenzii)

Saint-Malo

Doté d'un jardin et d'une terrasse, le Julieta propose un hébergement à Saint-Malo avec une connexion Wi-Fi gratuite et une vue sur le jardin. Cette m
Jonc de Mer

9.2  (9 recenzii)

Saint-Cast-le-Guildo

Doté d'un jardin, le Jonc de Mer est situé à Saint-Cast-le-Guildo, à 300 mètres de la plage Pen Guen, à 1,8 km de la plage des Mielles et à 23 km du p
Je note des avis

Basé sur 53 commentaires

9.4